Дома под ключ в Орле
Отзывы из Яндекс Карт
4.9
88 отзывов
Дополнительные услуги 88%
2 154 оценок
Комплектации 89%
1 535 оценок
Планировки 90%
2 484 оценок
Проекты 93%
2 231 оценок
С
Вивиана Осипова04/26/2026 г.
Наконец-то поставили баню 5,5х5,5 с сауной и маленьким бассейном. Вообще мечтали давно, но боялись что бассейн протечёт. Сделали чашу из композита, специалисты всё грамотно смонтировали, пока сухо. Единствееное — лестницу на второй ярус сделали крутоватой.
С
Петр Ю.01/26/2026 г.
Заказал баню 4х5 с маленьким бассейном и санузлом. Бассейн обложили мозаикой, которая за первый сезон частично облезла — компания вернула часть денег за материал.
С
Гера У.04/23/2025 г.
Спасибо за ваш творческий подход! Мы принесли собственные наброски, как хотим видеть веранду, и архитектор компании смог воплотить их в жизнь, предложив еще более интересные решения. В итоге получился уникальный дом, второго такого точно нет. Очень приятно работать с людьми, которые горят своим делом.
Отзывы из Google Карт
4.8
53 отзывов
Дополнительные услуги 88%
2 154 оценок
Комплектации 89%
1 535 оценок
Планировки 90%
2 484 оценок
Проекты 93%
2 231 оценок
С
Илья Ф.03/06/2026 г.
Дом 6х10 с мансардой и котельной для ПМЖ. Строили по типовому проекту из каталога, взял 60 квадратов. Мне кажется, стены холодноваты, хотя утеплителя положили 150 мм. Зимой топится хорошо, но газ расход большой. Надо было брать толще.
С
Евгения Фомичёва02/08/2026 г.
Строители оставили после себя мусор, пришлось самой заказывать контейнер. Но сам дом — каркасник на 70 квадратов — собран на совесть, щелей нет, окна не продувает.
С
Арно Греков02/25/2025 г.
Качество профилированного бруса оказалось выше всяких похвал — ровные стены, плотные угловые соединения, отсутствие щелей и идеальная геометрия венцов, что говорит о использовании хорошо просушенного материала и высоком уровне подготовки строителей.
Отзывы из 2гис
4.9
45 отзывов
Дополнительные услуги 88%
2 154 оценок
Комплектации 89%
1 535 оценок
Планировки 90%
2 484 оценок
Проекты 93%
2 231 оценок
С
Сережа Григорьев06/13/2025 г.
Каркасная баня возведена в кратчайшие сроки и с безупречным качеством, теперь это любимое место для отдыха всей нашей семьи.


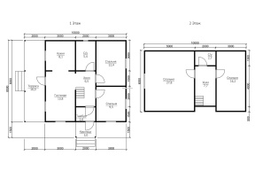
Проект №109 Каркасный дом для большой семьи 8х10 с террасой

каркас из строганой доски
Создайте свой план для этого проекта
и отправьте его нам на расчет в один клик.
Каркасный дом (150 мм) 8х10 Толщина утепления 150 мм 2931700 Заказать
Каркасный дом (200 мм) 8х10 Толщина утепления 200 мм 3211700 Заказать

Чтобы получить свою индивидуальную планировку, пользуйтесь нашим планировщиком.

При помощи планировщика вы можете создавать схемы, чертежи, планы, эскизы уникального дома с эркером, мансардой, с требуемым числом комнат. Вы сможете получить прекрасный проект, 100% отвечающий вашим запросам.

Создавая проект дома, вы сможете подобрать нужный вид крыши: двускатная, четырехскатная и вальмовая. Двухскатная крыша - самая популярна в небольших домах.

Востребованные размеры домов: мини - до 50 квадратных метров (в основном, 1 этажные дома); компактные - от 70 до 100 м2 (обычно 2х этажные); большие дома - от 150 квадратных метров и свыше.

Строим дуплексы - каркасные дома с 2-мя входами, рассчитанные на проживание сразу нескольких семей. Эти дома строятся для нескольких хозяев, они разделяются на две части, для обоих половин - свой отдельный вход.


Наши работы

Перейти в галерею


Комплектация

Площадь застройки: 83 м2
Длина: 10 м
Ширина: 8 м
Общая площадь: 120 м2
Исполнение Под ключ (с отделкой)
Фундамент Свайно-винтовой или ж/б сваи (рассчитываются отдельно).
Гидроизоляция фундамента Рубероид в два слоя.
Основание (обвязка) Из обрезного бруса 150х150 мм. 150х200 мм. согласно выбранной толщине утепления. Торцевая доска строганая 45х145/45х195+/-5 мм. согласно выбранной толщине утепления. Обработка антисептиком.
Цокольное перекрытие Строганая доска камерной сушки 45х145/45х195+/-5 мм. с шагом 590 мм. Обработка антисептиком.
Пол черновой Обрезная доска камерной сушки 20х100 мм.
Влаго-ветрозащита чернового пола Мембрана Ондутис А100.
Внешние стены Стойки каркаса из строганой доски камерной сушки 45х145/45х195+/-5 мм. с шагом 590 мм. Верхняя двойная и нижняя обвязки из строганой доски камерной сушки 45х145/45х195+/-5 мм. Разгрузочный ригель из строганой доски 45х145+/-5 мм. Укосины из строганой доски 20х95 мм.
Перегородки Стойки каркаса из строганой доски камерной сушки 45х95+/-5 мм. с шагом 590 мм. Верхняя двойная и нижняя обвязки из строганой доски 45х95+/-5 мм. Разгрузочный ригель из строганой доски камерной сушки 45х145+/-5 мм. Укосины из строганой доски камерной сушки 20х95 мм.
Сборка каркаса На гвозди.
Высота от пола до потолка Дом одноэтажный: 2,5 м. Дом с мансардой: 1-ый этаж- 2,5 м.
2-ой этаж (мансарда)- 2,3 м.
Дом в полтора и два этажа:
1-ый этаж 2,5 м.
2-ой этаж 2,4 м. в полутораэтажном доме
2,5 м. в двухэтажном доме.
Внешняя отделка стен Имитация бруса камерной сушки, сорт АВ, толщиной 17 мм. Монтаж через строганый брусок камерной сушки 45х45+/-5 мм. (вентилируемый фасад). Влаго-ветрозащитная мембрана- Ондутис А100.
Внутренняя отделка стен, перегородок Евровагонка камерной сушки, сорт АВ, толщиной 12,5 мм. по строганой рейке 20х40+/-5 мм. либо ГКЛ 12,5 мм.
Отделка потолка Евровагонка камерной сушки, сорт АВ толщиной, 12,5 мм. по строганой рейке 20х40+/-5 мм. либо ГКЛ 12,5 мм.
Пол чистовой Шпунтованная доска камерной сушки толщиной 35-36 мм. сорт АВ. по строганой рейке 20х40+/-5 мм. либо шпунтованная ДСП 16 мм. по разряженной обрешётке из строганой доски камерной сушки 20х95+/-5 мм.
Утепление (пол, потолок) Минеральная вата Knauf 150/200 мм. согласно выбранной толщине утепления.
Утепление стен Плитный утеплитель Rockwool, толщиной 150/200 мм. согласно выбранной толщине утепления.
Звукоизоляция перегородок Плитный утеплитель Rockwool, толщиной 100 мм.
Пароизоляция (стены, перегородки, пол, потолок) Плёнка Ондутис R70. Дополнительная герметизация нахлёстов/примыканий пароизоляционной плёнки клейкой лентой Delta.
Окна Двухкамерные стеклопакеты ПВХ белого цвета, профиль 60 мм. В комплекте: отливы, подоконники, москитные сетки.
Двери Входная- металлическая, утеплённая (Россия). Межкомнатные- филёнчатые.
Наличники на окна и двери Наличник деревянный, строганый, камерной сушки 70-90 мм. с двух сторон.
Лестница (при наличии второго этажа) Деревянная, одно или двухмаршевая. Перила- заводские резные, балясины- заводские точеные, устанавливаются стартовые точёные столбы. Ступени 40х200 мм. Тетива лестницы- 90х140 мм.
Крыша Двускатная, ломаная или вальмовая в соответствии с проектом.
Стропильная система Выполнена из строганой доски камерной сушки 45х145/45х195+/-5 мм. Шаг установки стропил 590 мм.
Обрешётка Выполняется из строганой доски камерной сушки толщиной 20х95+/-5 мм. Шаг крепления обрешетки 350 мм. Контробрешётка выполняется из строганого бруска камерной сушки 45х45+/-5 мм. Крепится по стропилам (вентиляционный зазор).
Подкровельная мембрана Ондутис А100
Кровельное покрытие (на выбор) Металлочерепица 0,45 мм. Цвет на выбор.
Фронтоны (при наличии) Каркас из строганой доски камерной сушки 45х145/45х195+/-5 мм. Обшиваются имитацией бруса камерной сушки, сорт АВ, толщиной 17 мм. Монтаж через строганый брусок камерной сушки 45х45+/-5 мм. (вентилируемый фасад). Влаго-ветрозащитная мембрана- Ондутис А100. Монтаж вентиляционных решёток.
Свесы крыши Ширина 400 мм. Подшиваются вагонкой камерной сушки, сорт АВ.
Терраса/балкон (при наличии) Устанавливаются опорные столбы из строганного бруса камерной сушки 140х140 мм.
Отделка потолка террасы/балкона Евровагонка камерной сушки толщиной 12,5 мм. сорт АВ.
Пол террасы/балкона Шпунтованная доска камерной сушки толщиной 35-36 мм. сорт АВ.
Ограждение террасы/балкона Перила- строганая доска. Балясины- точеные, фигурные. Либо ограждение в скандинавском стиле. Устанавливаются ступени у входа.
Допуск на геометрические параметры Составляет +/- 50 мм по длине с каждой стороны.
Допускается стыковка имитации бруса, вагонки и половой доски По всему периметру стен дома (если ширина и длина дома более 6,0 метров). Вагонки и доски пола в каждой отдельной комнате.
Допуски по имитации бруса, вагонке, доске +/- 5 мм.
В стоимость включена Доставка комплекта материала в радиусе 500 км. от г. Пестова Новгородской области и сборка дома на вашем участке.
Гарантия 5 лет.
Бытовка строительная 2,0х3,0 м. каркасно-щитовая. Стоимость 23000 руб. Остаётся на участке Заказчика.
Туалет 1,0х1,0 м. каркасно-щитовой. Стоимость 12000 руб. Остаётся на участке Заказчика.
Генератор Стоимость аренды на весь срок строительства 15000 руб. ГСМ за счёт Заказчика.

Постройка каркасных домов производится в нескольких вариантах: под усадку, когда дом отстаивается определенное время и под ключ.

В период холодов предпочтительнее строить в мороз, чтобы каркас не отсырел, в летний период - не в дождливую.

Максимально подходящими для сада или дачи считаются дома на винтовых сваях, на нашем сайте находятся одноэтажные и полуторатажные варианты.

В случае если вы собираетесь жить постоянно, можем предложить теплые и надежные двухэтажные и одноэтажные дома на плитном и ленточном фундаменте.

Существует 2 вида утепления: 200 мм и 150 мм. Каркасные дома с утеплителем 150 мм получаются дешевле, но не такими теплыми.

Дополнительные услуги


Перспективный и функциональный проект каркасного дома с большой террасой 109 размером 8х10 м. разработан компанией «Дачи из бруса» с учетом главных требований к сооружениям, предназначенным для комфортного загородного отдыха или постоянного проживания на живописном дачном участке.

Рассчитанное на длительное использование, сооружение имеет целый комплекс преимуществ, признанных нашими постоянными клиентами:

Комнаты в доме освещаются естественным светом сквозь двойные зимние окна. Строение общей площадью 120 кв.м. защищено от непогоды двускатной крышей, крытой ондулином красной, зеленой или коричневой расцветки.

Компания «Дачи из бруса» воплотит любые пожелания заказчика в Орле, придавая сооружению особую изысканность и неповторимость.


Популярные проекты


Дома из бруса Дома из бруса с мансардой Каркасные дома 7х9
хит продаж
Тип: с большой террасой
Общая площадь: 2
3067700
от 2921700
хит продаж
Тип:
Общая площадь: 2
3004700
от 2861700
Дома из бруса

Заказать или задать вопрос



Заказать или задать вопрос

Заказать звонок