Дома под ключ в Орле
Отзывы из Яндекс Карт
4.9
114 отзывов
Дополнительные услуги 88%
2 154 оценок
Комплектации 89%
1 535 оценок
Планировки 90%
2 484 оценок
Проекты 93%
2 231 оценок
С
Кузьма Исаев01/17/2025 г.
Хочу поблагодарить компанию за профессиональный подход и честность. Мне построили прекрасный брусовый дом, в котором сразу чувствуется особая атмосфера уюта и надёжности. Все этапы работы сопровождались фотоотчётами, что очень удобно для контроля.
Отзывы из Google Карт
4.8
69 отзывов
Дополнительные услуги 88%
2 154 оценок
Комплектации 89%
1 535 оценок
Планировки 90%
2 484 оценок
Проекты 93%
2 231 оценок
С
Раиса Лазарева04/23/2025 г.
Спасибо вам за ваш труд! Дом построен просто на пять с плюсом. Очень понравилось, что все материалы были качественные, привезли вовремя, и на участке всегда был идеальный порядок. Соседи даже спрашивали, кто так чисто работает. Теперь с удовольствием рекомендую вас всем знакомым.
Отзывы из 2гис
4.9
45 отзывов
Дополнительные услуги 88%
2 154 оценок
Комплектации 89%
1 535 оценок
Планировки 90%
2 484 оценок
Проекты 93%
2 231 оценок
С
Малика Т.08/12/2025 г.
Теперь это моё любимое место для отдыха — утром просыпаюсь под пение птиц за окном и благодарю себя за выбор такой компании.


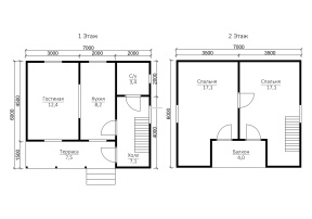
Проект №94 Каркасный дом с террасой и балконом 6х7

каркас из строганой доски
Создайте свой план для этого проекта
и отправьте его нам на расчет в один клик.
Каркасный дом (150 мм) 6х7 Толщина утепления 150 мм 2321700 Заказать
Каркасный дом (200 мм) 6х7 Толщина утепления 200 мм 2521700 Заказать

Чтобы получить свою индивидуальную планировку, пользуйтесь нашим планировщиком.

При помощи планировщика вы можете создавать схемы, чертежи, планы, эскизы уникального дома с эркером, мансардой, с требуемым числом комнат. Вы сможете получить прекрасный проект, 100% отвечающий вашим запросам.

Создавая проект дома, вы сможете подобрать нужный вид крыши: двускатная, четырехскатная и вальмовая. Двухскатная крыша - самая популярна в небольших домах.

Востребованные размеры домов: мини - до 50 квадратных метров (в основном, 1 этажные дома); компактные - от 70 до 100 м2 (обычно 2х этажные); большие дома - от 150 квадратных метров и свыше.

Строим дуплексы - каркасные дома с 2-мя входами, рассчитанные на проживание сразу нескольких семей. Эти дома строятся для нескольких хозяев, они разделяются на две части, для обоих половин - свой отдельный вход.


Наши работы

Перейти в галерею


Комплектация

Площадь застройки: 42 м2
Длина: 7 м
Ширина: 6 м
Общая площадь: 77 м2
Исполнение Под ключ (с отделкой)
Фундамент Свайно-винтовой или ж/б сваи (рассчитываются отдельно).
Гидроизоляция фундамента Рубероид в два слоя.
Основание (обвязка) Из обрезного бруса 150х150 мм. 150х200 мм. согласно выбранной толщине утепления. Торцевая доска строганая 45х145/45х195+/-5 мм. согласно выбранной толщине утепления. Обработка антисептиком.
Цокольное перекрытие Строганая доска камерной сушки 45х145/45х195+/-5 мм. с шагом 590 мм. Обработка антисептиком.
Пол черновой Обрезная доска камерной сушки 20х100 мм.
Влаго-ветрозащита чернового пола Мембрана Ондутис А100.
Внешние стены Стойки каркаса из строганой доски камерной сушки 45х145/45х195+/-5 мм. с шагом 590 мм. Верхняя двойная и нижняя обвязки из строганой доски камерной сушки 45х145/45х195+/-5 мм. Разгрузочный ригель из строганой доски 45х145+/-5 мм. Укосины из строганой доски 20х95 мм.
Перегородки Стойки каркаса из строганой доски камерной сушки 45х95+/-5 мм. с шагом 590 мм. Верхняя двойная и нижняя обвязки из строганой доски 45х95+/-5 мм. Разгрузочный ригель из строганой доски камерной сушки 45х145+/-5 мм. Укосины из строганой доски камерной сушки 20х95 мм.
Сборка каркаса На гвозди.
Высота от пола до потолка Дом одноэтажный: 2,5 м. Дом с мансардой: 1-ый этаж- 2,5 м.
2-ой этаж (мансарда)- 2,3 м.
Дом в полтора и два этажа:
1-ый этаж 2,5 м.
2-ой этаж 2,4 м. в полутораэтажном доме
2,5 м. в двухэтажном доме.
Внешняя отделка стен Имитация бруса камерной сушки, сорт АВ, толщиной 17 мм. Монтаж через строганый брусок камерной сушки 45х45+/-5 мм. (вентилируемый фасад). Влаго-ветрозащитная мембрана- Ондутис А100.
Внутренняя отделка стен, перегородок Евровагонка камерной сушки, сорт АВ, толщиной 12,5 мм. по строганой рейке 20х40+/-5 мм. либо ГКЛ 12,5 мм.
Отделка потолка Евровагонка камерной сушки, сорт АВ толщиной, 12,5 мм. по строганой рейке 20х40+/-5 мм. либо ГКЛ 12,5 мм.
Пол чистовой Шпунтованная доска камерной сушки толщиной 35-36 мм. сорт АВ. по строганой рейке 20х40+/-5 мм. либо шпунтованная ДСП 16 мм. по разряженной обрешётке из строганой доски камерной сушки 20х95+/-5 мм.
Утепление (пол, потолок) Минеральная вата Knauf 150/200 мм. согласно выбранной толщине утепления.
Утепление стен Плитный утеплитель Rockwool, толщиной 150/200 мм. согласно выбранной толщине утепления.
Звукоизоляция перегородок Плитный утеплитель Rockwool, толщиной 100 мм.
Пароизоляция (стены, перегородки, пол, потолок) Плёнка Ондутис R70. Дополнительная герметизация нахлёстов/примыканий пароизоляционной плёнки клейкой лентой Delta.
Окна Двухкамерные стеклопакеты ПВХ белого цвета, профиль 60 мм. В комплекте: отливы, подоконники, москитные сетки.
Двери Входная- металлическая, утеплённая (Россия). Межкомнатные- филёнчатые.
Наличники на окна и двери Наличник деревянный, строганый, камерной сушки 70-90 мм. с двух сторон.
Лестница (при наличии второго этажа) Деревянная, одно или двухмаршевая. Перила- заводские резные, балясины- заводские точеные, устанавливаются стартовые точёные столбы. Ступени 40х200 мм. Тетива лестницы- 90х140 мм.
Крыша Двускатная, ломаная или вальмовая в соответствии с проектом.
Стропильная система Выполнена из строганой доски камерной сушки 45х145/45х195+/-5 мм. Шаг установки стропил 590 мм.
Обрешётка Выполняется из строганой доски камерной сушки толщиной 20х95+/-5 мм. Шаг крепления обрешетки 350 мм. Контробрешётка выполняется из строганого бруска камерной сушки 45х45+/-5 мм. Крепится по стропилам (вентиляционный зазор).
Подкровельная мембрана Ондутис А100
Кровельное покрытие (на выбор) Металлочерепица 0,45 мм. Цвет на выбор.
Фронтоны (при наличии) Каркас из строганой доски камерной сушки 45х145/45х195+/-5 мм. Обшиваются имитацией бруса камерной сушки, сорт АВ, толщиной 17 мм. Монтаж через строганый брусок камерной сушки 45х45+/-5 мм. (вентилируемый фасад). Влаго-ветрозащитная мембрана- Ондутис А100. Монтаж вентиляционных решёток.
Свесы крыши Ширина 400 мм. Подшиваются вагонкой камерной сушки, сорт АВ.
Терраса/балкон (при наличии) Устанавливаются опорные столбы из строганного бруса камерной сушки 140х140 мм.
Отделка потолка террасы/балкона Евровагонка камерной сушки толщиной 12,5 мм. сорт АВ.
Пол террасы/балкона Шпунтованная доска камерной сушки толщиной 35-36 мм. сорт АВ.
Ограждение террасы/балкона Перила- строганая доска. Балясины- точеные, фигурные. Либо ограждение в скандинавском стиле. Устанавливаются ступени у входа.
Допуск на геометрические параметры Составляет +/- 50 мм по длине с каждой стороны.
Допускается стыковка имитации бруса, вагонки и половой доски По всему периметру стен дома (если ширина и длина дома более 6,0 метров). Вагонки и доски пола в каждой отдельной комнате.
Допуски по имитации бруса, вагонке, доске +/- 5 мм.
В стоимость включена Доставка комплекта материала в радиусе 500 км. от г. Пестова Новгородской области и сборка дома на вашем участке.
Гарантия 5 лет.
Бытовка строительная 2,0х3,0 м. каркасно-щитовая. Стоимость 23000 руб. Остаётся на участке Заказчика.
Туалет 1,0х1,0 м. каркасно-щитовой. Стоимость 12000 руб. Остаётся на участке Заказчика.
Генератор Стоимость аренды на весь срок строительства 15000 руб. ГСМ за счёт Заказчика.

Постройка каркасных домов производится в нескольких вариантах: под усадку, когда дом отстаивается определенное время и под ключ.

В период холодов предпочтительнее строить в мороз, чтобы каркас не отсырел, в летний период - не в дождливую.

Максимально подходящими для сада или дачи считаются дома на винтовых сваях, на нашем сайте находятся одноэтажные и полуторатажные варианты.

В случае если вы собираетесь жить постоянно, можем предложить теплые и надежные двухэтажные и одноэтажные дома на плитном и ленточном фундаменте.

Существует 2 вида утепления: 200 мм и 150 мм. Каркасные дома с утеплителем 150 мм получаются дешевле, но не такими теплыми.

Дополнительные услуги


Перспективный и функциональный проект каркасного дома с балконом и маленькой террасой 94 размером 6х7 м. разработан компанией «Дачи из бруса» с учетом главных требований к сооружениям, предназначенным для комфортного загородного отдыха или постоянного проживания на живописном дачном участке.

Рассчитанное на длительное использование, сооружение имеет целый комплекс преимуществ, признанных нашими постоянными клиентами:

Комнаты в доме освещаются естественным светом сквозь двойные зимние окна. Строение общей площадью 77 кв.м. защищено от непогоды двускатной крышей, крытой ондулином красной, зеленой или коричневой расцветки.

Компания «Дачи из бруса» воплотит любые пожелания заказчика в Орле, придавая сооружению особую изысканность и неповторимость.


Популярные проекты


Дома из бруса 7х9 Бани из бруса с мансардой Бани из бруса 5х8
хит продаж
Тип:
Общая площадь: 2
3319700
от 3161700
хит продаж
Тип:
Общая площадь: 2
2563700
от 2441700
Дома из бруса

Заказать или задать вопрос



Заказать или задать вопрос

Заказать звонок